Site Plan
Dublin Core
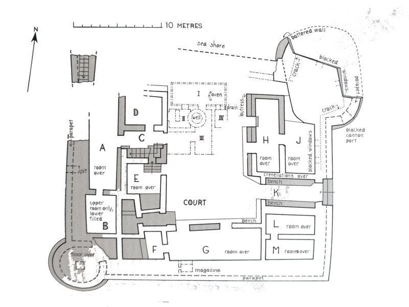
Title
Site Plan
Description
The Scale site plan of Gereza Fort.
Source
is51102025
Contributor
sarah
Format
image/png
Type
Still Image
Date Submitted
07/24/2025 05:43:12 pm
License
In Copyright (InC)
Spatial Coverage
current,-8.815698116551513,39.46632385253907;
Europeana
Europeana Type
IMAGE
Still Image Item Type Metadata
DescriptionEN
The Scale site plan of Gereza Fort.
Citation
“Site Plan,” STAGE, accessed December 13, 2025, https://stage.openvirtualworlds.org/omeka/items/show/4053.
Embed
Copy the code below into your web page
